Канальный кондиционер Excon CR-01-4423

Цену уточняйте

Доступно для предзаказа

Артикул: 258198 Категория:
Заказать консультацию

Мощный канальный кондиционер Excon (Экскон) CR-01-4423 применяется для обслуживания крупных объектов, суммарная площадь помещений в которых достигает 440 м2. Сплит-система производится во взрывозащищенном исполнении, что гарантирует безопасную эксплуатации на производствах или промышленности.

Особенности и преимущества:

  • Взрывозащищенное оборудование
  • Соответствует стандарту ГОСТ ISO9001-2011
  • Беспроводной пульт управления
  • Высокое качество исполнения
  • Универсальный дизайн

CR-01 от Excon — это линейка доработанных сплит-систем в канальном исполнении, которая применяется для эксплуатации в условиях промышленности или производства. Конструкция блоков соответствует требованиям взрывозащищенности и полностью подходит под современные стандарты и регламенты таможенного союза.

Производитель

Excon

Страна

Россия

Компрессор

Не инверторный

Режим работы

Холод

Охлаждение, кВт

44

Потребление при охлаждении, кВт

26.9

Напор, Па

196

Воздухообмен, м³/ч

8500

Энергоэффективность

D

Хладагент

R410A

ø жидкостной трубы, дюйм

5/8

ø газовой трубы, дюйм

1 1/4

Макс. длина трассы, м

50

Перепад высот, м

30

Диапазон t на охлаждение, °С

+17…+46

Напряжение, В

380

Тип установки

Горизонтальный

Режим осушения

Да

Дренажная помпа

Опция

Подключение питания

Внутренний блок/наружный блок

Режим вентил5102

Да

Самодиагностика

Да

Авторестарт

Да

Пульт Д/У

Да

Авто режим

Да

Гарантия

1.5 года

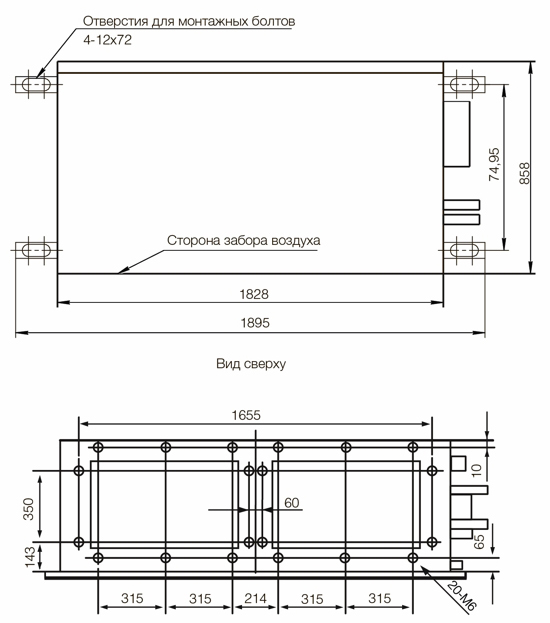
Габариты (ВхШхГ), мм

1615x1250x765

Высота, см

161.5

Ширина, см

125

Глубина, см

76.5

Уровень шума, дБа

70

Вес, кг

375

Габариты внутреннего блока (ВхШхГ), мм

668x1828x858

Высота внутреннего блока, см

66.8

Ширина внутреннего блока, см

182.8

Глубина внутреннего блока, см

85.8

Уровень шума внутреннего блока, дБа

63

Вес внутреннего блока, см

226

Сечение кабеля питания, мм²

5×16; 3×2.5

Сечения межблочного кабеля, мм²

4×1

Высоконапорный

Да

Взрывозащищенный

Да

В онлайн-магазине «Точка Холода» Вы можете удобно купить Канальный кондиционер Excon CR-01-4423 от известных Российских и зарубежных брендов с быстрой доставкой и официальной гарантией производителя. Если при оформлении заказа вы выбрали дополнительную услугу — монтаж климатического оборудования, то доставка для Вас будет бесплатной.

Время и стоимость доставки согласовываются с менеджером отдела продаж при оформлении заказа. Мы также просим Вас принять к сведению, что цена зависит не только от расстояния, но и от объема купленного оборудования.

Вы также можете забрать свой заказ самостоятельно из нашего магазина, по адресу: г. Москва, ул. Пруд-Ключики 5. Время работы: Пн-Чт 9:00-18:00, Пт 9:00-17:00. За самовывоз даётся скидка 10%.

Канальный кондиционер Excon CR-01-4423 и дополнительные услуги вы можете оплатить тремя способами:
image/svg+xml

За наличный расчёт

— Курьером
— В нашем офисе

image/svg+xml

Безналично

— По выставленному счёту
— Через банк по квитанции

image/svg+xml

В кредит или рассрочку

— Индвидуальные условия рассрочки
— Банковский кредит

Даем официальную гарантию от 12 месяцев до 10 лет, осуществляем гарантийный или постгарантийный ремонт.

Иван Алексеев

Иван Алексеев

В 2013 установил мульти сплит Панасоник и вентиляционную установку Вентмашина. Что сразу очень понравилось, так это тихая работа климатической техники.

Долго выбирал где купить, перелопатил...

В 2013 установил мульти сплит Панасоник и вентиляционную установку Вентмашина. Что сразу очень понравилось, так это тихая работа климатической техники.

Долго выбирал где купить, перелопатил десяток разных предложений, в итоге остановился на этом магазине. Оказалась реальная компания с нормальными специалистами, уже достаточно давно торгующая климатической техникой в Москве. Парни меня подробно проконсультировали, рассказали про все плюсы, указали на минусы интересующих моделей, предложили интересную цену. Ниже цена была, но в «Яндекс Маркете», с непонятной гарантией и монтажом. По вентиляции кроме Российской, было много предложений по иностранным системам, но цены на них существенно дороже.

Чётко всё сделали, несмотря на плавно текущий ремонт в моей квартире. Кондиционерщики приезжали несколько раз. Сначала для установки внешнего блока сплит-системы на балконе, прокладки медных трубок фреоновой трассы, дренажного шланга и электрического кабеля. Потом для установки коробов воздуховодов. Финалом стал монтаж внутреннего блока кондиционера и пульта управления для вентиляционной установки. Короче раза 3-4 приезжали разные мастера, но на моё удивление все были достаточно компетентны.

Бригада рабочих делавшая ремонт в квартире не все понимала правильно, поэтому делала часто по своему. Одним из результатов такого непонимания стал перегиб сливной трубочки кондея при отделке стены. Конденсату стало некуда деваться и один из настенных внутренних блоков мульти сплит-системы превратился в небольшой водопад. Я сразу подумал, какой замечательный бонус мне бригада строителей оставила, увлажнитель теперь в комнату покупать не надо. Снова вызвал монтажников из «Точки Холода». Приехали быстро и очень ловко эту досадную неприятность устранили. Сейчас все окей.

По Вентмашине была ситуация, что фильтр приходилось менять каждые 2 месяца, но тут ничего не попишешь, дом выходит на Большую Серпуховскую улицу и движение машин на ней постоянное. Отсюда много пыли засоряющей фильтр.

Еще пытались понять почему воздух нагревается на 5-10 градусов при очищении. Оказалось, что это стандартные параметры производителя, нагрев идет за счет работы электромотора и системы очистки.

В 2014 установил еще одну приточную вентиляционную установку Ventmachine и мульти сплит-систему Panasonic. Теперь во всех комнатах квартиры чистый воздух и комфортная температура.

Все работает как часы, спасибо спецам из «Точки Холода»!

Читать весь отзыв
Светлана Габуния

Светлана Габуния

Генеральный директор «SDI MEDIA RU»

Круглосуточная творческая деятельность в офисе подразумевает не только наличие комфорта, но и соблюдение санитарных норм. Правильная вентиляция помещений и поддержка в них оптимального температурного режи...

Круглосуточная творческая деятельность в офисе подразумевает не только наличие комфорта, но и соблюдение санитарных норм. Правильная вентиляция помещений и поддержка в них оптимального температурного режима с помощью климатической техники существенно снижает утомляемость сотрудников.

Для нашей компании «SDI MEDIA RU» это особенно актуально. Мы занимаемся дубляжом кино и телевизионного продукта. Тот кто знаком с этим видом деятельности, знает, что озвучка происходит в почти замурованной комнате без окон, со звуконепроницаемыми стенами. Содержать такие помещениях пригодными для круглосуточной работы актеров и звукорежиссеров можно лишь имея хорошее климатическое оборудование. А для нашей специфики, климатическая техника должна быть еще и с бесшумной подачей воздуха, звук которой не улавливается микрофонами.

Компания «Точка холода» сумела нам рассчитать и быстро установить тихую вентиляционную систему, которая подходит под все наши требования. И большая им благодарность за то, что откликаются на наши просьбы по первому зову. Ведь для нас срыв сроков сдачи проекта означает потерять клиента.

Читать весь отзыв
Радмила Гаспарян

Радмила Гаспарян

«ЗАО Ферреро Руссия»

В новый офис нужна была хорошая и недорогая система вентиляции с функцией кондиционирования воздуха. Отправив ...

В новый офис нужна была хорошая и недорогая система вентиляции с функцией кондиционирования воздуха. Отправив свою заявку в дюжину организаций, мы выбрали предложение данной компании. Цена на монтаж вентиляции у этих ребят оказалась ниже других, а опыта в установке климатического оборудования ни чуть не меньше чем у фирм конкурентов. После переезда в новое здание, жалоб от сотрудников на холод зимой или духоту от летней жары нет совсем. Вся климатическая техника отлично работает, в офисе теперь чистый воздух и очень комфортная температура.

Читать весь отзыв
Литвин Николай

Литвин Николай

«ОТР 2000»

У нас очень высокие требования к работе наших серверов, т.к. это одни из основных инструментов в нашем бизнесе. Нам необходима стабильная температура в серверной комнате, чтобы оборудование не перегревало...

У нас очень высокие требования к работе наших серверов, т.к. это одни из основных инструментов в нашем бизнесе. Нам необходима стабильная температура в серверной комнате, чтобы оборудование не перегревалось. Между нашими компаниями был заключён договор на монтаж промышленных кондиционеров с обязательным условием, организовать круглосуточную техническую поддержку и регулярное сервисное обслуживание систем кондиционирования всего офиса. По итогам нашего сотрудничества могу сказать, ценовая политика и уровень оказываемых услуг нас полностью устраивают. В дальнейшем, мы будем продолжать привлекать «Точку Холода» для проектов где необходима установка и обслуживание климатического оборудования.

Читать весь отзыв

Служба доставки

Вам вовремя привезут купленное оборудование домой — наша служба доставки работает как часы. Если для ремонта необходим демонтаж и отправка неисправной детали в сервисный центр, Вам не надо делать это самим, её демонтируют и увезут наши сотрудники.

Гарантия

Даём официальную гарантию от 12 месяцев до 10 лет, осуществляем гарантийный или постгарантийный ремонт.

Собственный сервисный центр

Наш сервисцентр сделает точную диагностику и выполнит аккуратный ремонт кондиционера или вентиляционной установки. При ремонте, мы используем оригинальные детали, что значительно продлевает срок службы климатического оборудования.

Удобная оплата

Для снижения единовременной финансовой нагрузки мы предусмотрели покупку в кредит или рассрочку.

Прозрачность цен

Вы всегда знаете, сколько и за что платите, потому что мы не используем скрытых платежей. Менеджеры отдела продаж озвучивают Вам окончательную стоимость товара или услуг.