ecoCRAFT exclusiv VKK2406/3-E — очень мощный газовый котел, который применяется для отопления жилых помещений большой площади. Вырабатываемая мощность теплового генератора составляет 236,2 кВт. Все управление котлом полностью автоматизировано, многофункционально и высокотехнологично. По особенности монтажа является напольным.
Особенности:
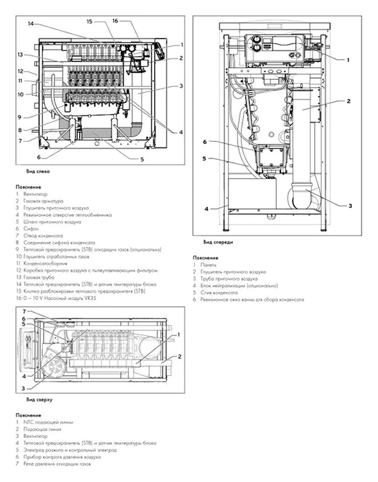
- Конденсационный газовый напольный отопительный аппарат
- Модулирующая горелка, диапазон мощности от 18,5% до 100%
- Средний за отопительный сезон КПД 110%
- Встроенная коммуникационная шина eBus
- Возможность использования воздуха для горения как из помещения,
так и снаружи - Блок котла поставляется полностью собранным
- Конденсационный теплообменник из специального сплава
- Модулирующая горелка с предварительным принудительным
смешением - Возможность настройки на частичную мощность для режима
отопления и нагрева бойлера - Электрический розжиг и контроль за процессом горения
- Место для встраивания регулятора
Данный газовый котел является напольного типа со скрытой теплотой конденсации и монтируется в любом помещении куда проведена газовая магистраль. Этот котел очень удобен в использовании, потому что имеет высоту достаточную для комфортного пользования. Он не занимает много места. Для эксплуатации котла не нужно постоянно нагинаться, а достаточно просто подойти к нему и установить необходимые параметры
В котле установлен уникальный микропроцессор, который руководит всеми процессами теплового генератора. Микропроцессор устаналивается на лицевую часть и управляется специальной панелью приборов с ЖК-дисплеем. При помощи ЖК-дисплея можно с максимальным комфортом наблюдать и контроллировать все процессы и параметры теплового генератора.
С регулируемой камерой сгорания Вы можете настроить осуществление забора воздуха для горения как изнутри помещения, так и снаружи, используя все системы воздуховодов или дымоходов Vaillant, предназначенных для конденсационных котлов.
Данный тепловой генератор очень мощный и подходит для отопления не только не больших помещений. но крупных по площади различных комплексов. При своей мощности он имеет небольшие габаритные размеры, а на ряду с привлекательным дизайном будет отлично смотреться в любом помещении независимо от его предназначения. Коэффициент полезного действия за весь отопительный сезон доходит до 110%, что достойно уважения и похвал.
Самодиагностика:
Функция которая позволит с максимальным комфортом и быстротой решить все проблемы по неисправностям. Для появления специального окна диагностики достаточно нажать всего лишь одну кнопку и на ЖК-дисплее выйдут функции диагностики, а также сообщения о неисправностях.








