Газовый котел двухконтурного типа от надежного японского бренда Rinnai (Риннай) BR-R30 — это наиболее интересный представитель современной климатической техники, способный на отопление и приготовление горячей воды, и идеально подходящий для установки внутри городских квартир или индивидуальных домов. Котел полностью безопасен при эксплуатации и отличается высокой экологичностью.
Основные достоинства бытовых настенных котлов от торговой марки Rinnai:
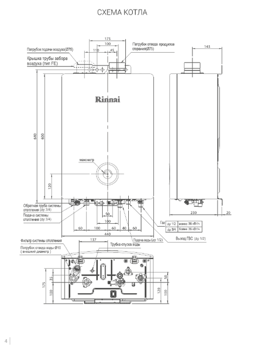
- Настенные газовые котлы с закрытой камерой сгорания серии BR-R для отопления и горячего водоснабжения
- Пластинчатый теплообменник
- Жидкокристаллический дисплей с диагностикой ошибок
- Автоматическая регулировка мощности в режиме отопления и ГВС
- Перенастройки на сжиженный газ
- Циркуляционный насос с магнитной муфтой
- Защита от замерзания, от перепадов напряжения
- Выбор режимов ‘зима / лето’, ‘отсутствие’
- Электронный розжиг
- Автоматический воздухоотводчик, автоматический настраиваемый перепускной вентиль, предохранительный вентиль, трехходовой вентиль с электроприводом
- Возможность подключения настенных пультов управления: ‘Standart’, ‘DeLuxe’ или ‘Wi-Fi’
- ‘Дублирующий’ микропроцессор позволяет работать газовым котлам в непрерывном режиме
- Автоматическая погодозависимая настройка
- Функция ECO
- Регулировка температуры теплоносителя в зависимости от температуры наружного воздуха
Газовые отопительные двухконтурные агрегаты от японской компании Rinnai – это высокое качество, комфорт в эксплуатации и удобная система управления. Все модели характеризуются стабильной и эффективной работой. Котлы выполнены в настенном навесном варианте, компактные размеры корпуса и стильный дизайн позволят разместить устройства в любом интерьере. В комплекте с приборами поставляется циркуляционный насос.










