Снабдить жилой участок горячей качественной водой, а также организовать безопасное и комфортное отопление способен настенный газовый котел с новейшей внутренней комплектацией Vaillant (Вайлант) VUW 280/5-5 atmoTEC plus. Данное оборудование отличается высококлассным качественным исполнением и умным интуитивным управлением, а также имеет защиту от влияния внешней среды.
Особенности и преимущества настенных газовых котлов Vaillant серии atmoTEC & turboTEC plus:
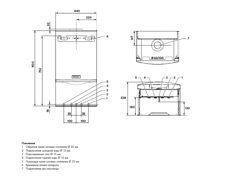
— Описание
- Газовый настенный отопительный аппарат со встроенным приготовлением горячей хозяйственной воды
- Мощность аппарата регулируется модулирующей горелкой
- Регулирование температуры горячей воды
- Автоматическое переключение в режим приготовления горячей хозяйственной воды при её расходе от 1,5 л/мин и управление мощностью аппарата по расходу и температуре нагреваемой воды
- Естественный отвод продуктов сгорания в дымоход
— Возможности установки
- Отопление и встроенное горячее водоснабжение
- Для реконструируемых и строящихся жилых домов и квартир
- Возможность установки в жилой зоне
- Минимальный требуемый боковой зазор 10 мм, все узлы доступны спереди
- НЕ ИСПОЛЬЗУЮТСЯ В КАСКАДНЫХ УСТАНОВКАХ
— Оснащение
- Встроенный проточный пластинчатый теплообменник для нагрева воды, противодействующий образованию накипи
- Встроенный циркуляционный насос с автоматическим переключением ступеней
- Закрытый расширительный бак
- Автоматический воздухоотводчик
- Автоматический настраиваемый перепускной вентиль
- Предохранительный вентиль
- Приоритетный переключающий вентиль с электроприводом
- Интеллектуальный контроль давления в системе отопления
- Первичный теплообменник из меди со средним КПД ≥ 91%
- Горелка из хромо-никелевой стали
- Постоянно действующая защита от замерзания
- Защита от заклинивания насоса и трёхходового вентиля
- Переключатель “ЗИМА/ЛЕТО”
- Возможность настройки на частичную мощность в режиме отопления
- Электронное зажигание и управление всеми функциями
- Контроль состояния и поиск неисправностей через систему диагностики с ЖК-дисплеем с подсветкой и большими кнопками
- Присоединительный комплект в объёме поставки
- Встроенный коммутационный модуль для интерфейса стандарта eBus
Настенные газовые котлы Vaillant серии atmoTEC & turboTEC plus – это эргономичные и элегантные современные модели, предназначенные для эксплуатации на объектах любого типа, так как отличаются многофункциональностью и усовершенствованной комплектацией. Оборудование подходит для создания отопительных систем, а также эффективно участвует в налаживании стабильного водоснабжения.











