Модель Wolf (Вольф) FGB-K-28 представляет собой конденсационный передовой котел газового типа, созданный с использованием уникальных технологий, разработанных компанией-производителем, и отличающийся эргономичностью и привлекательностью корпуса. Для изготовления всех элементом внутренней комплектации котла были использованы только качественные материалы.
Особенности и преимущества газовых котлов Wolf серии FGB:
- высокая эффективность
- низкие затраты на обслуживание
- управление со смартфона
- стильный дизайн
- постоянная температура горячей воды
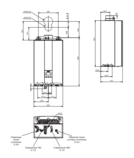
- компактные размеры
- простой интерфейс
- надежные и долговечные материалы
- простота установки и обслуживания
- легкость управления
- соответствие ErP- классу А
- удаленное управление (с iSM7e)
- высокий уровень стандартной модели
- простая интеграция в систему ГВС
- совместим с системой управления Wolf
- практический диапазон модуляции 1:6
Серия FGB от компании Wolf – это линейка ультрасовременных технологичных конденсационных газовых котлов, все модели которой отличаются качественным и передовым исполнением, а также усовершенствованной комплектацией. Изделия имеют различную мощность и представлены в двух вариантах: котлы для создания систем отопления и модели, подходящие для организации отопления и систем ГВС.










