Газовый конденсационный котел настенного исполнения DeDietrich (Де Дитриш) EVODENS PRO AMC 65 DIEMATIC EVOLUTION станет полезным приобретением для любого помещения. Оборудование надежно защищено от внешнего воздействия, а также от внутренних повреждений. Для более удобного управления устройством используется модуль iSYSTEM, который устанавливается на стене..
Особенности и преимущества:
- Среднегодовой КПД эксплуатации до 110%.
- Низкие выбросы загрязняющих веществ (класс NOx: 6, NOx < 41 мг/кВт·ч).
- Компактный моноблочный теплообменник из сплава алюминия с кремнием.
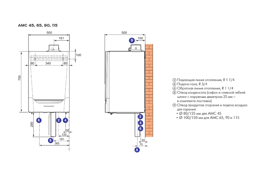
- Возможность подключения к коаксиальному дымоходу или к дымовой трубе.
- Модулирующая горелка полного предварительного смешения из нержавеющей стали с поверхностью из сплетенных металлических волокон.
- Диапазон модуляции — от 18 до 100% мощности.
- Вентилятор с шумоглушителем для забора воздуха на горение.
- Поставляется с автоматическим воздухоотводчиком и сифоном для отвода конденсата.
- Diematic Evolution — погодозависимая автоматика, способная управлять каскадными установками (от 2 до 8 котлов).
- Давление подачи газа: 13/20 мбар.
De Dietrich серии EVODENS PRO AMC Diematic Evolution – это качественные газовые конденсационные котлы настенного исполнения. Каждая модель из серии отличается высокой производительностью и низким уровнем шума. Агрегаты могут функционировать как самостоятельно, так и совместно, по несколько устройств одновременно. Для комфортного управления и используется панель Diematic Evolution.










