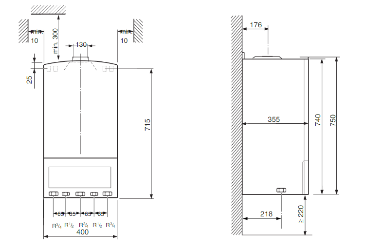
Настенный газовый котел BOSH ZWA 24 — 2 K BW Classiс – отличное решение как для отопления помещений, так и для приготовления горячей воды.
- Мощность этого котла позволяет отапливать помещения общей площадью до 240 м2.
- Медный битермический теплообменник, изготовленный по инновационной технологии “труба в трубе”, обеспечивает быстрое и высокоэффективное приготовление горячей воды.
- Котел может работать как на природном, так и на сжиженном (баллонном) газе – это дополнительно расширяет Ваши возможности в использовании котла.
- При помощи поворотных ручек-регуляторов Вы можете управлять температурой отопительной системы и горячей воды.
- Жидкокристаллический дисплей на передней панели котла проинформирует Вас о текущем состоянии прибора, а также о характере неполадок, если таковые возникнут.
- Функция элетророзжига позволяет запускать прибор без дополнительных источников огня.
- Благодаря модулирующей горелке, котел самостоятельно регулирует мощность прибора в зависимости от текущего расхода горячей воды, от давления подаваемой воды в систему, а также в зависимости от давления газа.
- Горелка изготовлена из высококачественной нержавеющей стали, что обеспечит длительную работу прибора без износа одной из основных компонент котла.
- Закрытая камера сгорания обеспечит работу котла на воздухе, забираемом снаружи помещения и принудительно удаляя продукты сгорания помощи вентилятора. Это обеспечит всегда чистый и свежий воздух внутри помещения, на качество которого никогда не будет влиять работа котла.
- Модулируемый газовый клапан обеспечивает подачу газа с тем давлением, которое необходимо в текущий момент для нормальной работы прибора – это защищает прибор как от неоправданно заниженной подачи газа, так и от излишнего давления, приводящего к неполному сгоранию газа и сбоям, связанным с этим.
- Предохранительное устройство Cotronic включает ионизационный контроль пламени и электромагнитные клапана, что обеспечивает полную защиту прибору и Вашему дому.
- Возможность выбора режимов “Зима/лето” предусматривает работу в режиме отопления и приготовления в режиме “Зима” и только ГВС в режиме “Лето”.
- Защита от замерзания защитит Ваш котел и отопительную систему от разрушения даже при экстремально низкой температуре на улице и внутри помещения.
- Встроенная защита от блокировки насоса и трехскоростного клапана обеспечит стабильную работу этих устройств.
При желании Вы можете подключить внешние регулирующие устройства – погодозависимый регулятор, избавляющий Вас от необходимости регулировать мощность котла при каждой смене погоды, и комнатный программатор, обеспечивающий управление котлом по температуре внутри помещения.











