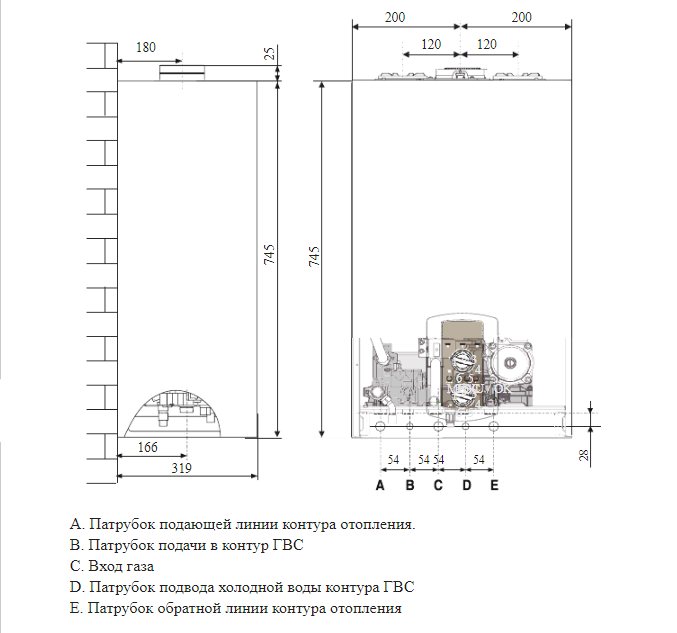
Конденсационный котел модели Chaffoteaux (Шафуто) PIGMA ADVANCE 30 – это экономичное и высокотехнологичное бытовое оборудование, позволяющее создать в доме комфортные условия, наладив подачу горячей воды и организовав стабильное и надежное отопление. Рассматриваемый котел прост в использовании и оснащен новейшей интеллектуальной системой управления.
Особенности и преимущества:
- Новый первичный теплообменник из нержавеющей стали.
- Секции проходов увеличились на 142% по сравнению с предыдущей версией.
- Сезонная энергоэффективность 94%.
- Коэффициент модуляции 1:10.
- Электронное управление системой горения.
- Функция SRA.
- Переход на сжиженный газ.
- Интуитивные электрические соединения.
- Экономия энергии до 25% в сочетании с функцией Expert Control и функцией SRA.
- Пониженный выброс загрязняющих веществ, класс NOx 6.
Передовые котлы газового типа Chaffoteaux серия PIGMA ADVANCE представляют собой современные технологичные бытовые устройство, используемые для создания отопления и снабжения нагретой водой. Все оборудование представленной линейки было выполнено из прочных и качественных материалов и отличается долговечностью и особой устойчивостью к внешним воздействиям.










