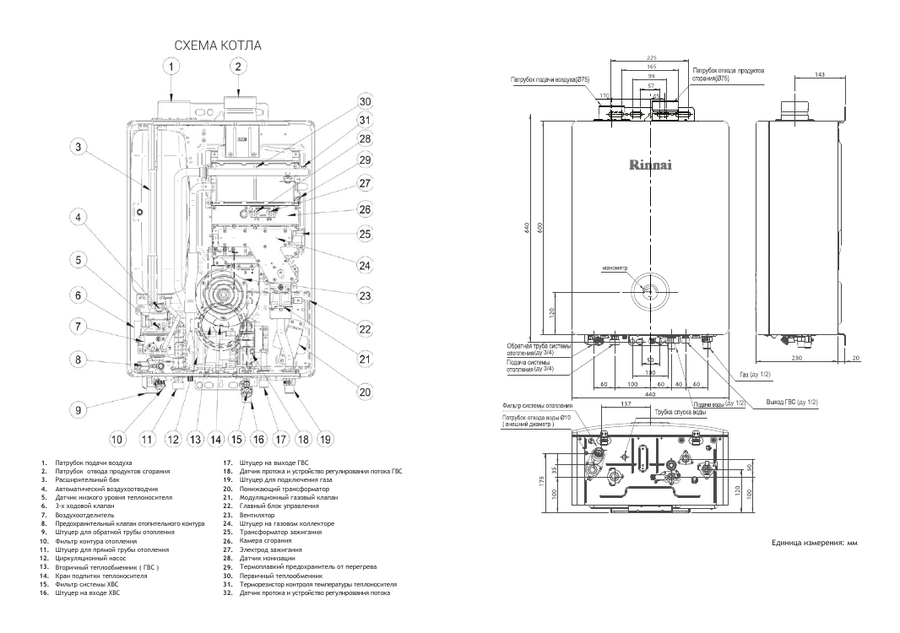
Двухконтурный газовый котел модели Rinnai (Риннай) BR-K16 выполнен в эргономичном дизайне и отличается компактными размерами. Оборудование используется для создания отопления в помещениях. Малогабаритный прибор монтируется настенным способом, оснащен закрытой камерой сгорания и отличается высокой мощностью. Эксплуатация котла считается надежной и безопасной.
Преимущества и особенности отопительного котла от торговой марки Rinnai серии BR-K:
- Газовый настенный отопительный котёл со встроенным приготовлением горячей хозяйственной воды;
- Закрытая камера сгорания;
- Возможность переналадки на сжиженный газ;
- Мощность котла регулируется модулирующей горелкой;
- Автоматическое переключение в режим приготовления горячей хозяйственной воды при её расходе от 2,3 л/мин. и управление мощностью аппарата в зависимости от расхода и температуры нагреваемой воды;
- Принудительный отвод продуктов сгорания — коаксиальный дымоход через стену;
- QR-код для оперативного перехода на краткую инструкцию котла для пользователей смартфона;
- Внутреннее программное обеспечение для контроля состояния, настройки параметров и поиска неисправностей;
- Встроенный проточный пластинчатый теплообменник из нержавеющей стали для нагрева горячей воды;
- Электронное зажигание и управления всеми функциями;
- Оптимальная тяга обеспечивается плавно регулируемым бесщеточным вентилятором дымососа;
- Полное сгорание газа и минимальный выброс NO2 и CO.
Rinnai BR-K – это ультрасовременные котлы отопления от известной по всему миру японской торговой марки. Модели характеризуются максимальным удобством в эксплуатации: современная электроника, которой оснащены устройства, практически не нуждается в присутствии пользователя. Во все котлы семейства встроен пластинчатый теплообменник для организации горячего водоснабжения.









