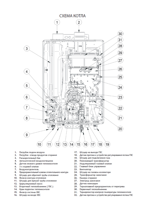
Двухконтурный котел модели Rinnai (Риннаи) BR-RE42 представляет собой высокотехнологичное бытовое устройство, позволяющее организовывать горячее водоснабжение и отопление в индивидуальных и загородных домах. Опционально можно настроить удаленное управление котлом через интернет и установить дополнительный режим отопления и программатор. Рассматриваемое изделие отличается качественным и передовым исполнением из высокопрочных материалов.
Особенности и преимущества:
- Закрытая камера сгорания;
- Возможность переналадки на сжиженный газ;
- Мощность котла регулируется модулирующей горелкой;
- Погодозависимая автоматика;
- Режим «ECO»;
- Поградусное регулирование температуры горячей воды;
- Автоматическое переключение в режим приготовления горячей хозяйственной воды при ее расходе;
- Функция предварительного нагрева горячей воды;
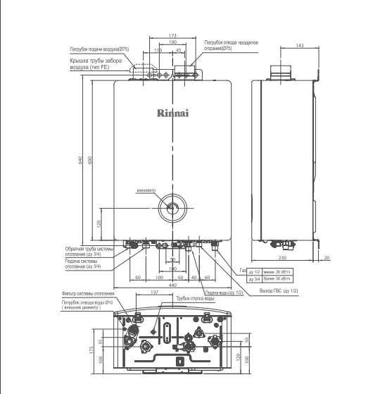
- Принудительный отвод продуктов сгорания — коаксиальный дымоход через стену;
- Широкий диапазон мощности серии (18– 42 кВт);
- QR-код для оперативного перехода на краткую инструкцию котла для пользователей смартфона.
Настенные газовые двухконтурные котлы Rinnai серии BR-RE – это эргономичное высоконадежное оборудование бытового типа, отлично подходящее для использования в жилых домах, где важно обеспечить максимальный комфорт и безопасность находящихся на обслуживаемой территории людей. Все модели укомплектованы современными защитными системами и имеют высокий уровень эффективности.









