Управление приточной установки VKJet E6-1 с электрическим нагревателем подвешивается горизонтально на специальных кронштейнах. Встроенная выносная панель применяется для управления прибором. Модель мощностью 6,5 кВт оснащена вентилятором, одну из трёх скоростей можно выбрать на панели с ЖК дисплеем.
Особенности и преимущества:
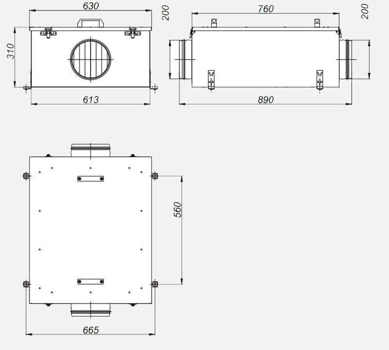
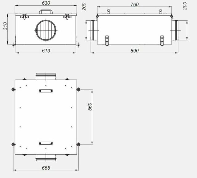
- Установка состоит из фильтра, электрокалорифера и вентилятора.
- Электрокалорифер может быть изготовлен в 5-ти вариантах: 2, 4, 6, 9 или 12 кВт.
- Вентилятор — однофазный мощностью 355 Вт, для VKJet-E12 — мощностью 350Вт.
- Номинальная мощность электронагревателей подбирается при заказе. В процессе работы мощность установки регулируется с помощью твердотельного реле для поддержания заданной температуры.
- Установка работоспособна в любой пространственной ориентации.
- Нормальное положение установки — подвесное.
- Для крепления к строительным конструкциям в корпусе установки предусмотрены кронштейны.
- Для подсоединения к системе воздуховодов имеются два выхода диаметром 200 мм.
- Вентилятор имеет три скорости.
- Makcимaльнoe дaвлeниe – 450 Пa
- Современный класс защиты
- Оборудована выносной панелью с ЖК дисплеем
- Высокий КПД
- Энергоэффективны
- Низкий уровень шума
- Фильтры G4
- Минимальные потери тепла
- С автоматикой в комплекте
- Сторона обслуживания (определяется по ходу движения воздуха при расположении съемной крышки сверху): L — левая; R – правая
Компактные вентиляционные установки VKJet представлены широким ассортиментом приточных моделей с водяным W и электрическим E калорифером и двумя сторонами обслуживания, низким уровнем шума и встроенной автоматикой. Производительность установок серии до 1200 м3/ч, выполнены в тепло-шумоизолированном корпусе из оцинкованной стали толщиной стенок в 25 мм.










