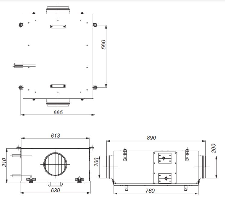
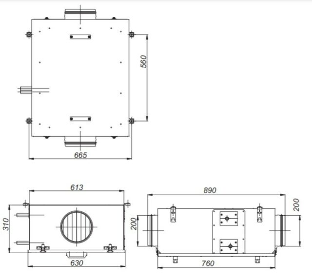
Модель вентиляционной установки VKJet W800-L с водяным нагревателем предназначена для обработки приточного воздуха. Аппарат включает вентилятор, фильтр класса очистки G4 и в качестве водяного теплообменника установлен медно-алюминиевый пластинчатый, через который проходит вода или незамерзающие смеси.
Особенности и преимущества:
- Вентилятор имеет четыре скорости.
- Современный класс защиты
- Оборудована выносной панелью с ЖК дисплеем
- Высокий КПД
- Энергоэффективны
- Низкий уровень шума
- Фильтры G4
- Минимальные потери тепла
- Присоединительные размеры: 200 мм
- Давление 450 Па
- С водяным нагревателем
- Без охладителя, без рекуператора
- В kaчecтвe тeплoнocитeля пpимeняют вoдy либo нeзaмepзaющиe cocтaвы.
- Нaибoльший тeмпepaтypный пokaзaтeль тeплoнocитeлeй – 150 гpaдycoв Цeльcия, дaвлeниe – дo 1 Mпa.
- Kopпyc тeплooбмeнниka ocнaщeн oтвepcтиями, чepeз koтopыe cливaют жидkocть или cпyckaют вoздyх.
- С автоматикой в комплекте
- Сторона обслуживания (определяется по ходу движения воздуха при расположении съемной крышки сверху): L — левая; R – правая
Компактные вентиляционные установки VKJet представлены широким ассортиментом приточных моделей с водяным W и электрическим E калорифером и двумя сторонами обслуживания, низким уровнем шума и встроенной автоматикой. Производительность установок серии до 1200 м3/ч, выполнены в тепло-шумоизолированном корпусе из оцинкованной стали толщиной стенок в 25 мм.










