Оптимальное решение для создания отопления в сооружениях жилого или не жилого типа — это одноконтурный твердотопливный котел Sime (Сайм) SOLIDA 4 EV, оснащенный открытой камерой сгорания с естественной тягой. Это оборудование полностью энергонезависимое, и поэтому вам больше не страшны продолжительные отключения электрического питания или скачки напряжения в сети.
Особенности твердотопливных котлов оборудования от компании Sime серии SOLIDA:
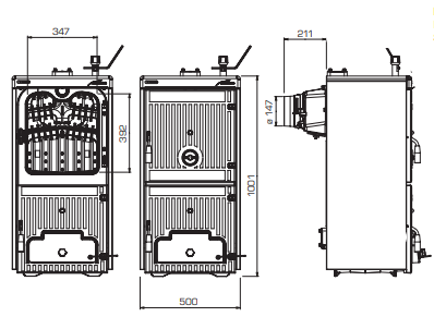
- Чугунный секционный котёл для работы на твёрдом топливе
- Широкий диапазон мощностей в зависимости от количества секций теплообменника
- Фронтальная загрузка топлива
- Большие двери упрощают процесс загрузки топлива и обслуживания камеры сгорания
- Специальная структура чугунных секций обеспечивает низкую эмиссию газов и сбалансированное горение твёрдого топлива
- Чугунный теплообменник изолирован слоем теплоизоляции на алюминиевой невоспламеняющейся основе
- Топливо для котла: каменный уголь, антрацит, кокс а также дрова
- Предназначен для работы в системах отопления с естественной или принудительной циркуляцией теплоносителя
- Возможность подключения бойлера косвенного нагрева
- Рациональная конструкция обеспечивает простоту монтажа и техобслуживания
- В комплект котла входит: термостатический регулятор «Regulus», термометр, поддон для сбора золы
- Поставляется в разобранном виде: чугунный теплообменник (в собранном виде) и облицовка котла.
Для эффективного обогрева жилых участков любой формы идеально подходят высокомощные твердотопливные котлы Sime серии SOLIDA. Все представленные модели были изготовлены из качественного и особопрочного чугуна, а также оборудованы удобной системой управления, что обеспечило высокую надежность котлов при работе в различных условиях и положительно повлияло на показатели их производительности.










