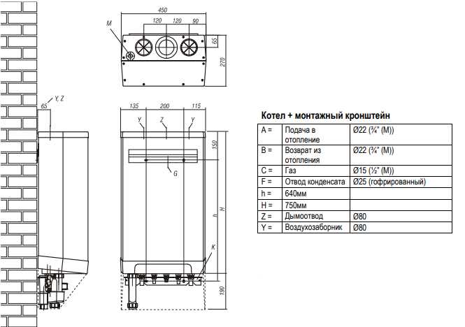
Газовый котел ACV (АЦВ) Kompakt HR eco 24/28 отличается малогабаритностью и эргономичностью корпуса и может быть установлен в небольших помещениях с ограниченным свободным пространством. Устройство размещается на стене, легко обслуживается и управляется, а в процессе работы не производит вредных выбросов. Данная модель надежно защищена от перегрева.
Особенности и преимущества:
- Настенный конденсационный котел
- Би-металлический теплообменник, устойчивый к перегреву
- Газовая инфракрасная горелка с модуляцией мощности
- Работа на сжиженном газе (адаптер в комплекте)
- Встроенный циркуляционный насос с модуляцией
- Комплект быстрого подключения в составе котла
- Герметичная камера сгорания с коаксиальным или раздельным дымоходом
- Высокий КПД на всех режимах работы
- Встроенная автоматика управления котлом с погодным регулированием, управлением двумя отопительными контурами и бойлером
- Подключение периферийных устройств: OpenTherm, 0-10v, и радиотермостаты 869МГц
Газовые настенные котлы ACV серии Kompakt HR(E) eco представляют собой современное бытовое оборудование с высокотехнологичной функциональной системой управления, компактным и качественным исполнением, а также отличной рабочей производительностью. Такие модели прекрасно подходят для использования на жилых участках и не нуждаются в сложном техобслуживании.










