Газовый конденсационный котел BAXI (БАКСИ) LUNA PLATINUM+ 1.18 GA представляет собой безопасное, многофункциональное и надежное устройство, созданное для стабильной и эффективной эксплуатации на различных объектах жилого типа. Такая модель не занимает много места при размещении, бесшумно работает в любом режиме и не нуждается в слишком сложном обслуживании.
Особенности и преимущества настенных газовых котлов Baxi серии LUNA Platinum+
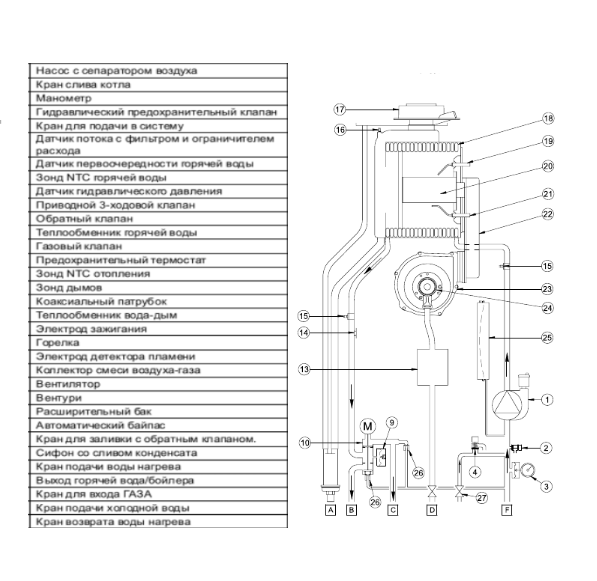
– Газовая система
- Система адаптивного контроля горения;
- Коэффициент модуляции мощности — 1:10;
- Сохраняют номинальную мощность при падении входного давления газа до 5 мбар;
- Непрерывная электронная модуляция пламени в режимах отопления и ГВС;
- Пониженное содержание СО и NOx;
- Горелка из нержавеющей стали AISI 316L с предварительным смешением газа и воздуха;
- Возможна перенастройка для работы на сжиженном газе.
– Гидравлическая система
- Прогрессивный модуляционный циркуляционный насос со встроенным автоматическим воздухоотводчиком;
- Электронный манометр;
- Первичный теплообменник из нержавеющей стали AISI 316L;
- Вторичный пластинчатый теплообменник из нержавеющей стали (двухконтурные модели);
- Встроенный электрический трехходовой клапан с мотором (в том числе в одноконтурных моделях);
- Автоматический байпас;
- Постциркуляция насоса;
- Фильтр на входе холодной воды;
- Возможность подключения внешнего накопительного бойлера для горячей воды.
– Температурный контроль
- Новая съемная панель управления с широким дисплеем и встроенным датчиком температуры (опционально беспроводная);
- Два датчика температуры отопления на подаче и на обратке;
- Самоадаптация погодозависимой автоматики;
- Возможность недельного программирования режима работы;
- Диапазон регулирования температуры в системе отопления 25—80°С;
- Встроенная погодозависимая автоматика;
- Регулирование и автоматическое поддержание заданной температуры в контурах отопления и ГВС;
- Цифровая индикация температуры и давления;
- Возможность управления разнотемпературными зональными системами.
– Устройства контроля и безопасности
- Электронный манометр — срабатывает при падении давления воды в 2 этапа: предупреждение и блокировка (0,5 бар);
- Управление каскадом до 16 котлов;
- Электронная система самодиагностики и запоминание последних ошибок в работе;
- Ионизационный контроль пламени;
- Системы защиты от блокировки насоса и трехходового клапана;
- Защитный термостат от перегрева теплоносителя в первичном теплообменнике;
- Контроль безопасного удаления продуктов сгорания при помощи датчика NTC;
- Предохранительный клапан в контуре отопления (3 атм.);
- Система защиты от замерзания в контурах отопления и ГВС.
Настенные конденсационные газовые котлы Baxi серии LUNA Platinum+ – это ультрасовременные интеллектуальные модели, сочетающие в себе использование передовых высоких технологий, эргономичное и оригинальное исполнение и демократичную цену. Такие устройства помогут воссоздать желаемый климат в помещениях в холодное время года, поддерживая теплую и уютную атмосферу в доме.










