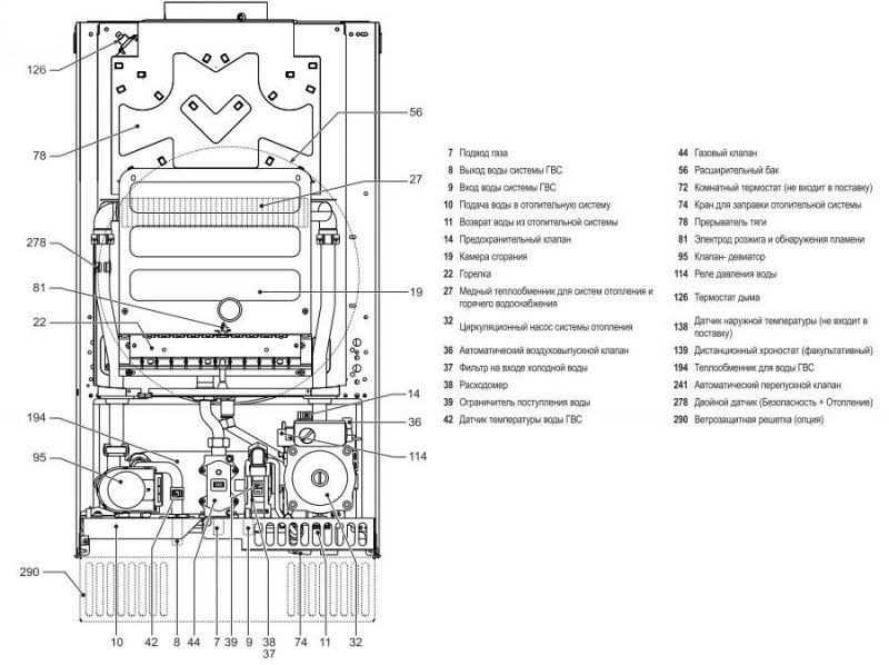
Высокопроизводительный бытовой котел модели Lamborghini (Ламборджини) FL D 37F, работающий на газе, предназначен для настенного монтажа и отличается компактным современным исполнением. Представленное устройство позволит организовать эффективное и надежное отопление, а также послужит для налаживания ГВС.
Особенности и преимущества:
- Медный основной теплообменник и пластинчатый теплообменник для ГВС высокого КПД
- Непрерывная электронно-регулируемая модуляция пламени в контурах отопления и ГВС
- Регулировка плавного розжига
- Ионизационный контроль пламени
- Два диапазона регулирования температуры (35/80°С – радиаторы, 30/40°С – «теплый пол»)
- Возможность подключения комнатного термостата и пульта ДУ
- Возможность использования антифризов
- Автоматический байпас
- ЖК-дисплей
- Самодиагностика котла
- 3-х скоростной циркуляционный насос со встроенным автоматическим выпускником воздуха
- Система защиты от блокировки насоса
- Постциркуляция насоса
- Постциркуляция вентиляции
- Расширительный бак на 8 литров
- Минимальное давление газа на входе 5 мбар
Настенные газовые котлы серии FL надежно защищены различных воздействий и характеризуются долговечностью и высокой рабочей эффективностью, обусловленной качественным широким внутренним оснащением всех моделей. Котлы исполнены в классических эргономичных корпусах и имеют современные интуитивные панели управления.










