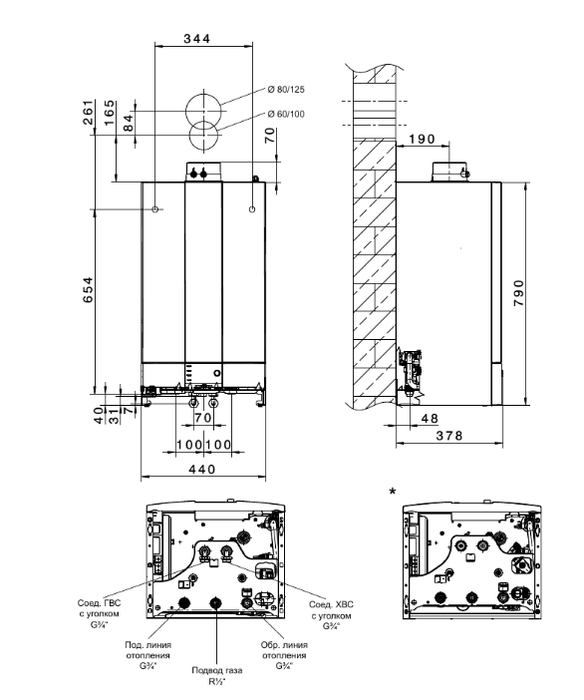
Газовый конденсационный котел с настенным вариантом размещения Wolf (Вольф) CGB-2К 20 подходит для создания отопительных систем и гвс на участках бытового типа и отличается качественным и эргономичным передовым исполнением, благодаря которому представленная модель легко обслуживается, максимально надежна в работе, а также с комфортом и без каких-либо трудностей монтируется в нужном месте.
Особенности и преимущества газовых котлов Wolf серии CGB:
- Плавно регулируемая мощность от 1,8 кВт
- Электронный регулятор горения с автоматической калибровкой и подстройкой под качество газа (например,
- при подмешивании биогаза), максимально снижающий выбросы продуктов горения
- Нет необходимости контролировать качество газо-воздушной смеси
- Возможен переход на сжиженный газ без дополнительной настройки уровня CO2
- Увеличение времени работы горелки, меньшее количество запусков, повышенная производительность
- Теплообменник с покрытием ALUPro
- Гармоничный дизайн, позволяющий заменять отдельные компоненты системы
- Новая система управления Wolf
- Оптимальный эффект конденсации за счет регулировки соотношения температуры подающей/обратной воды Точки подключения совместимые со предыдущими версиями
- Внутренняя изоляция корпуса для минимизации уровня шума
- Больше не требуется контролировать переполнение или повышение температуры обратной воды для
- максимальной отдачи от процесса конденсации
- Подготовка к эксплуатации с учетом пожеланий потребителя
- Встроенный насос с высокой производительностью EEI < 0.23
Ведущая европейская компания Wolf представляет современную бытовую серию CGB, включающую в себя газовые конденсационные котлы, предназначенные для настенного монтажа и укомплектованные уникальной передовой системой управления. Все модели линейки будут стабильно и максимально эффективно работать, при этом не требуя контроля со стороны пользователей.










